Floor Plans
Find your perfect layout
Three styles — all two-level, all with private patios and detached garages.
Style A
ONE BEDROOM
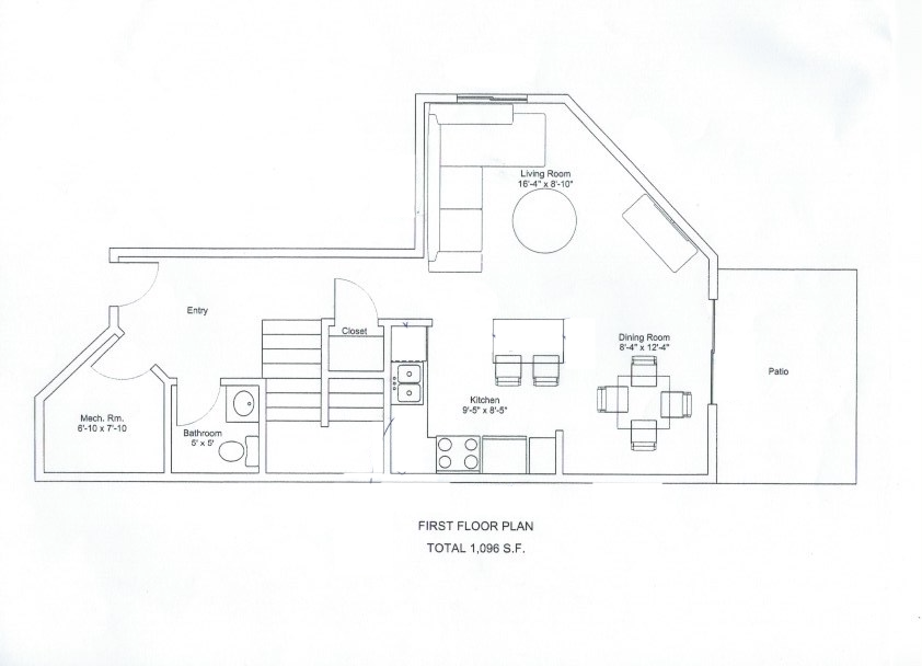
Style A - One Bedroom
Style B
Two Bedroom
Style A - Two Bedroom
Style C
Two Bedroom
Floor Plans
Three styles — all two-level, all with private patios and detached garages.
ONE BEDROOM
Bedrooms | 1
Bathrooms | 1½ (main + upper)
Levels | 2
Garage | Single detached
Patio | Private
Laundry | In-unit stack W/D
Bedrooms | 1
Bathrooms | 1½ (main + upper)
Levels | 2
Garage | Single detached
Patio | Private
Laundry | In-unit stack W/D
Two Bedroom
Bedrooms | 2
Bathrooms | 1½ (main + upper)
Levels | 2
Garage | Single detached
Patio | Private
Laundry | In-unit stack W/D
Bedrooms | 2
Bathrooms | 1½ (main + upper)
Levels | 2
Garage | Single detached
Patio | Private
Laundry | In-unit stack W/D
Two Bedroom
Bedrooms | 2
Bathrooms | 1½ (main + upper)
Levels | 2
Garage | Single detached
Patio | Private
Laundry | In-unit stack W/D
Bedrooms | 2
Bathrooms | 1½ (main + upper)
Levels | 2
Garage | Single detached
Patio | Private
Laundry | In-unit stack W/D